Дякую Роману та Оксані за дуже круту візуалізацію і за те, що супроводжували протягом виконання всього проекту. Квартира в стилі лофт це була моя давня мрія і тепер вона втілена в реальність! Ще раз дякую вам!
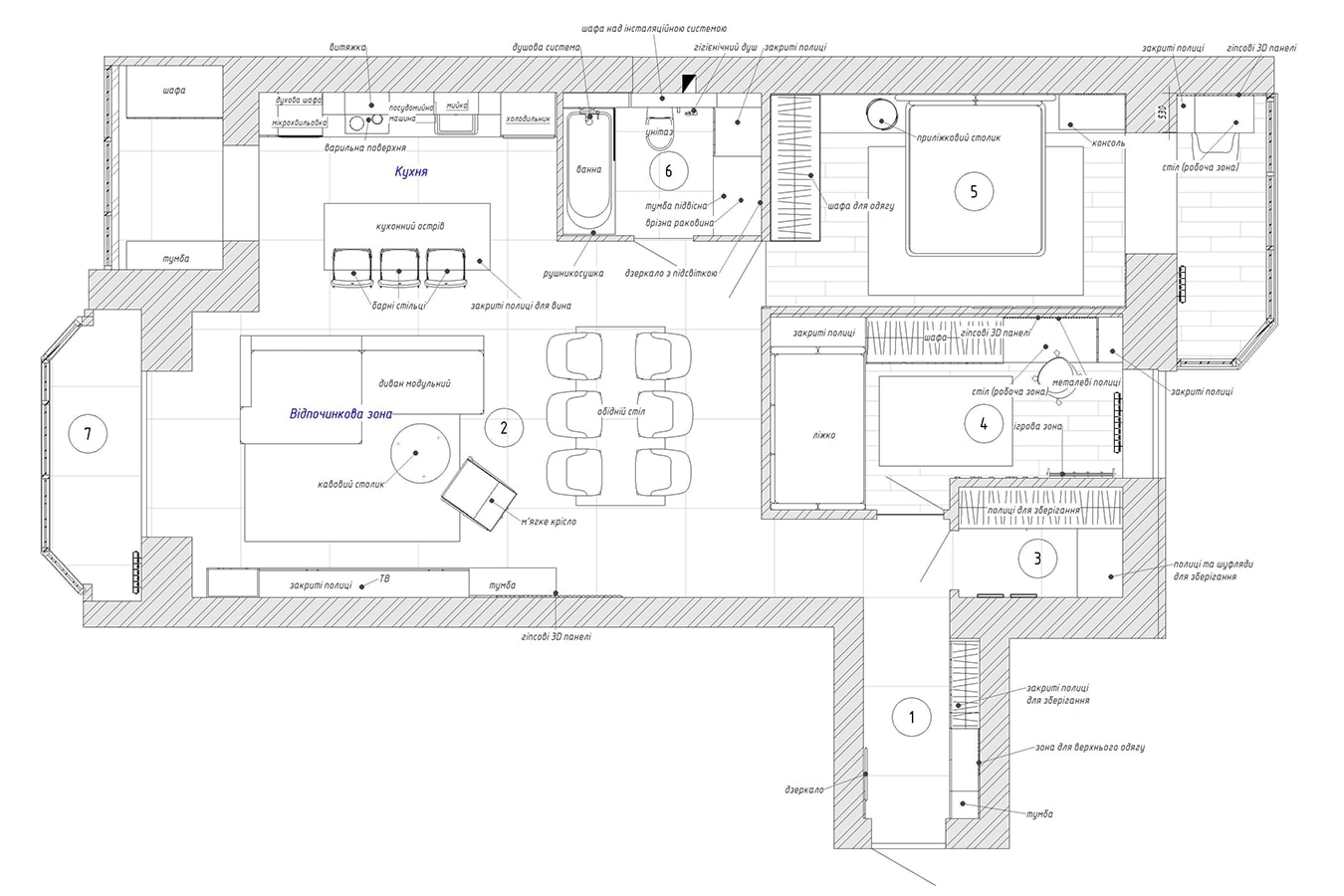
Запрошуємо вас ознайомитися з нашим проектом - дизайном квартири площею 95 кв.м, виконаним у сучасному стилі.
Ми провели повне перепланування даного помешкання, створивши великий відкритий простір, який об'єднує кухню та вітальню, ідеально поєднуючи декілька функціональних зон.
Крім того, ми оптимізували розміщення санвузла, розширили спальню та додали окрему гардеробну кімнату. Усе це стало можливим завдяки вдалому планувальному рішенню.
Інтер'єр квартири виконаний у сучасному стилі, де ми надали перевагу природній кольорової гамі, використали елементи дерева та каменю, які стали невід'ємною частиною проекту.
Все це створює атмосферу затишку та гармонії, де кожна деталь має своє значення.
Долучайтеся до огляду цього проекту, щоб відчути весь обсяг виконаної роботи та побачити, як ми трансформуємо простір у вашому житті.

Дякую Роману та Оксані за дуже круту візуалізацію і за те, що супроводжували протягом виконання всього проекту. Квартира в стилі лофт це була моя давня мрія і тепер вона втілена в реальність! Ще раз дякую вам!

Радий, що обрав саме вас. Дякую, що зробили дизайн проект в такі стислі строки та за те, що ви взяли на себе частину обов'язків в плані технічного нагляду за проектом.

Більш ніж задоволені наданими послугами. Креативний підхід, вчасне реагування на труднощі які виникали під час реалізації проекту, а також дуже вдячні за надані знижки на комплектацію. Рекомендую всім!

Мега круті спеціалісти! Звернулися до вас за архітектурним проектом та дизайном інтер'єру, а в бонус отримали ще й ланшафтний дизайн. Будинок побудували, дотримуючись проекту та всіх рекомендацій. Тепло, затишно, комфортно і це все вже на стадії ремонту, яка скоро має закінчитися. Дякуємо вам та підрядникам, яких ви нам надали за вашу титанічну роботу.